Elegant Retreat 60m²

Deluxe Cabins 's image

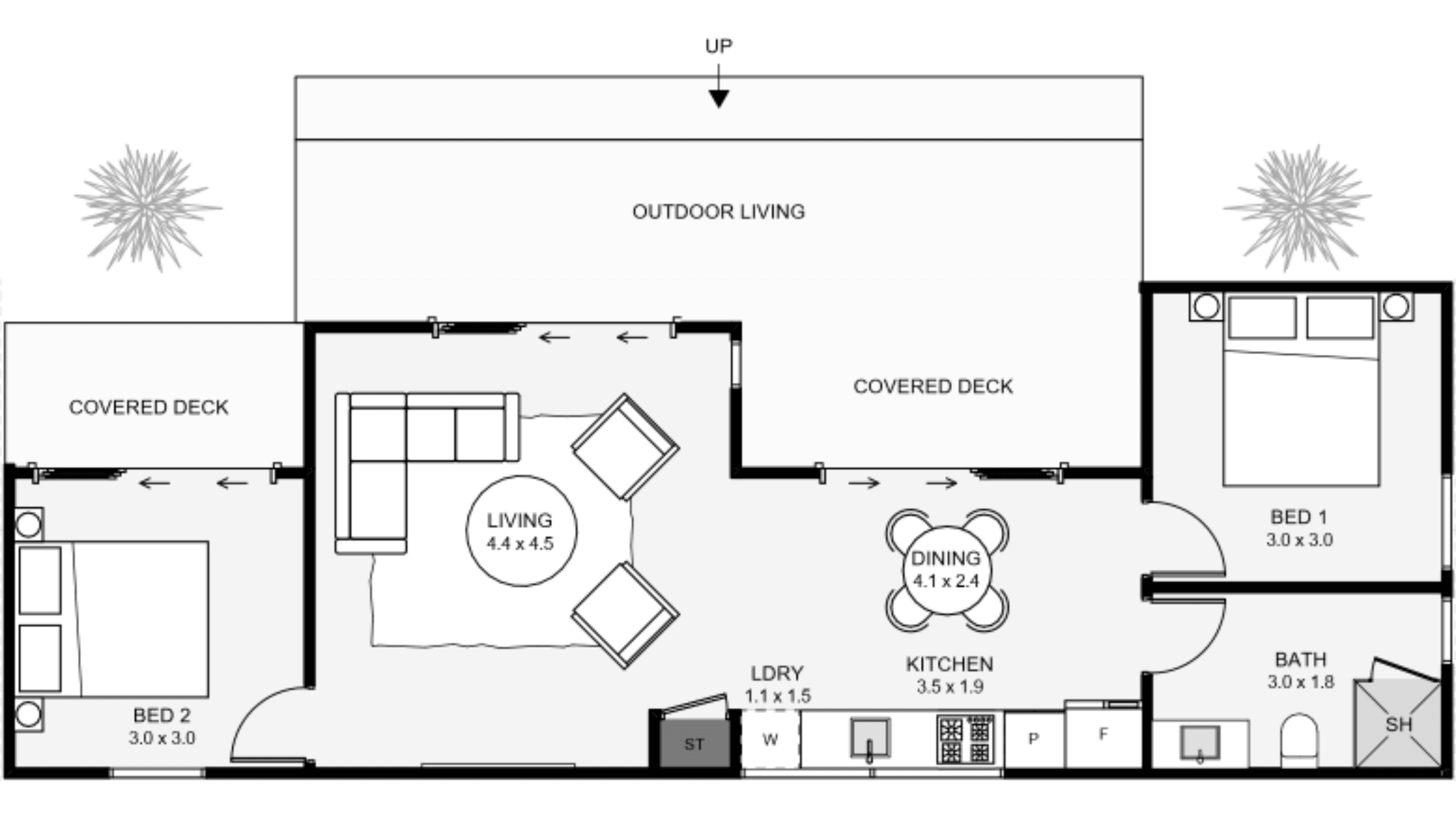
This elegantly designed granny flat will transform your property, featuring two private bedrooms at separate ends, a central kitchen and dining area, and two covered outdoor decks for seamless indoor-outdoor living. The gable roof and vertical cedar cladding create a sophisticated, timeless appeal, unlocking new opportunities with this inspiring build.

Deluxe Cabins 's image

Floor Area: 60m² ‎ ‎ ‎‎ ‎ |‎ ‎ ‎‎ ‎ L: 14.9 m ‎ ‎ ‎‎ ‎ W: 5.1 m

0

1

1

Contact Us

Thinking about building your own cabin or tiny home? We’d love to hear from you. Get in touch today for a free quote.