The Modern Entertainer 60m²

Deluxe Cabins 's image

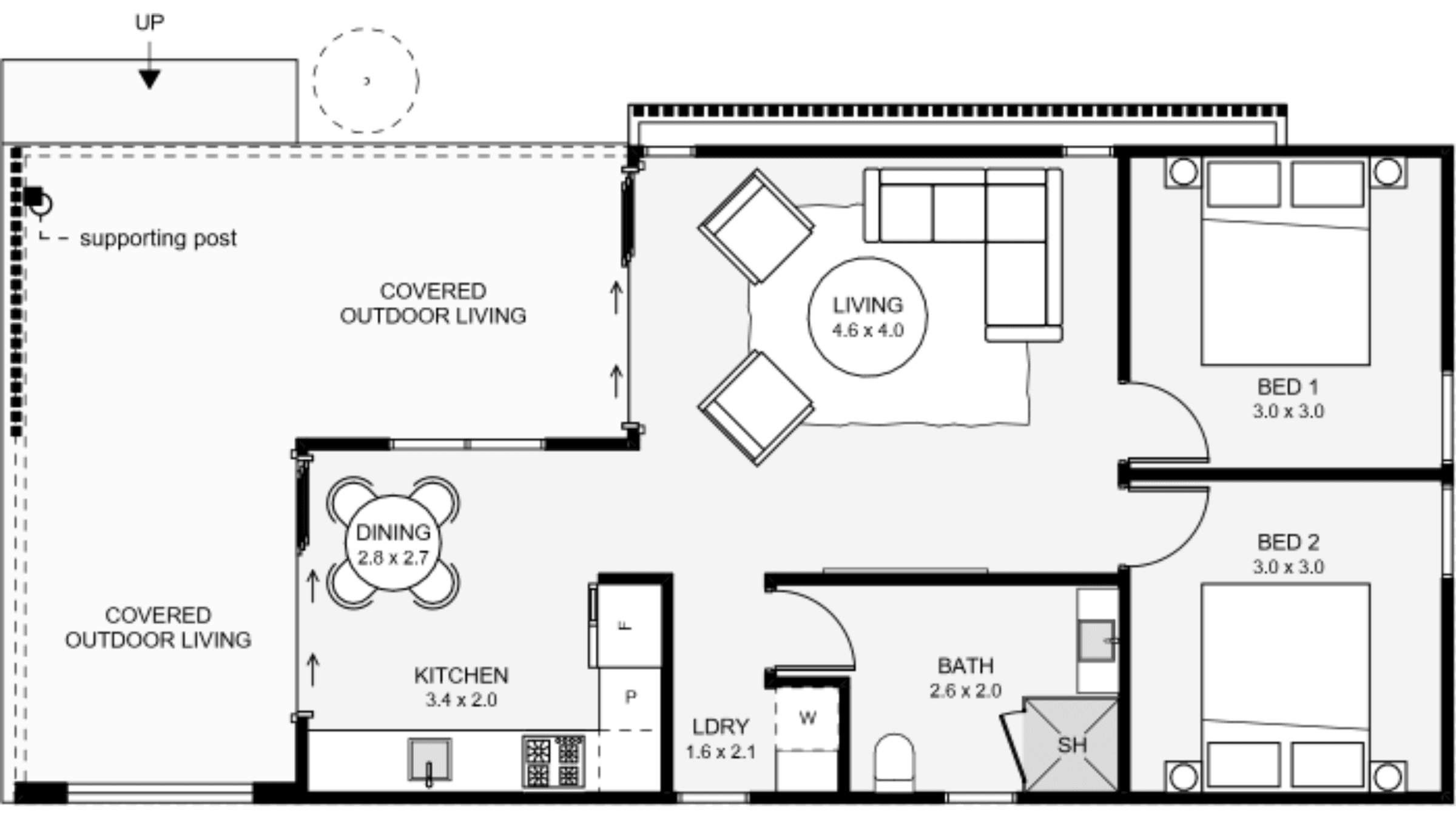
Maximise your section with this ultra-modern granny flat, featuring two spacious bedrooms, a stylish kitchen and dining area, separate laundry, and a sleek bathroom. The large covered outdoor living space is ideal for entertaining, while the mono-pitch roof, timber privacy screening, and vertical grooved panels in a durable paint finish create a contemporary and practical addition to your property.

Deluxe Cabins 's image

Floor Area: 60m² ‎ ‎ ‎‎ ‎ |‎ ‎ ‎‎ ‎ L: 13.7 m ‎ ‎ ‎‎ ‎ W: 6.3 m

0

2

1

1

Contact Us

Thinking about building your own cabin or tiny home? We’d love to hear from you. Get in touch today for a free quote.